一宮 中古住宅
◆一宮 ◆敷地面積:119.80㎡(約36.23坪)◆ハウジング山忠施工 ◆近隣スーパー等商業施設充実 ◆備前一宮駅まで徒歩約8分
◆吉備スマートICまで車で約5分 ◆中山小学校 徒歩約14分 ◆中山中学校 徒歩約3分
一戸建て
-
27,000,000円
![]()
![]()
![]()
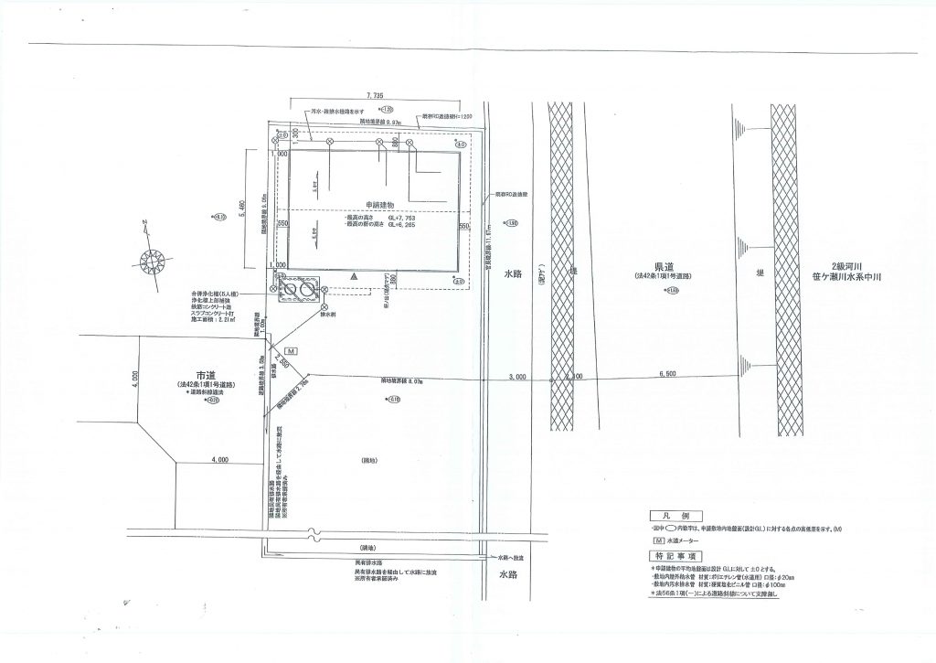
物件種目 一戸建て 価格 27,000,000円 住居表示 岡山市北区一宮1170番地10 所在地番 岡山市北区一宮字大ノ田1170番10 家屋番号 1170番10 タイプ 居宅 地目 宅地 面積 公簿:119.80㎡(約36.23坪) 私道負担 無 間口 間口 約2.5m/奥行 約9.9m 敷地権利 所有権 計画区域 市街化区域 用途地域 第一種住居地域 建ぺい率 60% 容積率 200% 地域地区 屋外広告物第3種許可地域・建築基準法第22条区域 接面道路 ・南西側:市道(一宮121号線)幅員:約4.1m~4.6m 42条1項1号道路 画地状況 平坦 最適用途 住居 構造 木造合金メッキ鋼板葺2階建 築年月 令和3年3月16日新築 床面積 1階:42.23㎡ 2階:37.26㎡ 計79.49㎡(約24.04坪) 用途 居宅 間取 2LDK 駐車場 有(縦列2台) 電気 有 水道 引き込み有(13mm) 排水 合併浄化槽5人槽 ガス オール電化 交通 電車 備前一宮駅 徒歩:約8分 距離:約600m
バス 辛川下(中鉄) 徒歩:約6分 距離:約420m校区 中山小学校 徒歩:約14分 距離:約1,090m
中山中学校 徒歩:約3分 距離:約210m現況 所有者居住中 引渡 要相談(令和8年3月末以降) 備考 ・売却済の際はご容赦ください。
・図面と現況が異なる場合は、現況優先といたします。
所有者居住中につき写真5枚目以降については、新築時(令和3年3月26日)撮影の写真となりますのでご了承ください。
・仲介物件は、成約の際規定の手数料を申し受けます。
・手数料には別途消費税がかかります。
・現状有姿にて引渡し。
・売主契約不適合責任免責。
・付帯設備無償譲渡。
・ハウジング山忠施工住宅。
・南西側角に敷地内電柱あり。
・2階部分エアコン2台残置予定。取引態様 媒介 委任方式 専属専任 https://maps.app.goo.gl/LiMbk2dcmvL2eS8t6この物件を見た人は
こんな物件も見ています
浦安本町 中古住宅
一戸建て
岡山県岡山市南区浦安本町94番地164
電車 備前西市駅 徒歩:約57分 距離:約4,500m
バス 県営うらやす団地前 徒歩:約5分 距離:325m公簿:362.50㎡(約109.65坪)
35,000,000円
一宮 中古住宅
一戸建て
電車 備前一宮駅 徒歩:約8分 距離:約600m
バス 辛川下(中鉄) 徒歩:約6分 距離:約420m公簿:119.80㎡(約36.23坪)
27,000,000円
和気町大中山 中古住宅
一戸建て
電車 和気駅 徒歩:約42分 距離:約3,300m
バス 中山(町営) 徒歩:約5分 距離:約340m公簿:226.43㎡(約68.49坪)
18,000,000円
福富中二丁目中古住宅
一戸建て
岡山県岡山市南区福富中二丁目12-41-6
備前市西市駅:徒歩約50分/距離約3,970m
福田公会堂前(岡電):徒歩約9分/距離約690m108.42㎡(約32.79坪)
8,900,000円