浦安本町 中古住宅
◆浦安本町 ◆敷地面積:362.50㎡(約109.65坪) ◆5LDKファミリー向け住宅 ◆‘‘和‘‘がお好きな方にオススメ
一戸建て
岡山県岡山市南区浦安本町94番地164
35,000,000円
![]()
![]()
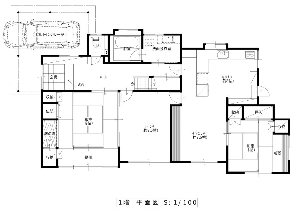
物件種目 一戸建て 価格 35,000,000円 住居表示 岡山市南区浦安本町94番地164 所在地番 岡山市南区浦安本町94番164 家屋番号 94番164 タイプ 居宅 地目 宅地 面積 公簿:362.50㎡(約109.65坪) 私道負担 無 間口 間口 約16m/奥行 約22m 敷地権利 所有権 計画区域 市街化調整区域 用途地域 無指定 建ぺい率 60% 容積率 200% 地域地区 屋外広告物第3種許可地域・建築基準法22条区域 接面道路 ・西側:市道(浦安本町25号線)幅員:約8m 42条1項1号道路 画地状況 平坦 最適用途 住居 構造 木造瓦葺2階建 築年月 昭和61年7月12日新築 床面積 1階:113.31㎡ 2階:43.32㎡ 計:156.63㎡(約47.38坪) 駐車場 有 電気 有 水道 引き込み有(13mm) 排水 公共下水 ガス 都市ガス 交通 電車 備前西市駅 徒歩:約57分 距離:約4,500m
バス 県営うらやす団地前 徒歩:約5分 距離:325m校区 浦安小学校 徒歩:約1分 距離:約80m
芳泉中学校 徒歩:約34分 距離:約2,650m現況 空き家 引渡 相談 備考 ・売却済の際はご容赦ください。
・図面と現況が異なる場合は、現況優先といたします。
・仲介物件は成約の際、規定の手数料を申し受けます。
・手数料には別途消費税がかかります。
・現状有姿にて引渡し。(売主契約不適合責任免責)
・付帯設備無償譲渡。
・公簿取引。
・原則再建築不可。但し、都市計画法第43条の建築許可(同一用途・同一敷地)を得ることで再建築可能。取引態様 媒介 委任方式 専属専任媒介 この物件を見た人は
こんな物件も見ています
国富 中古住宅
一戸建て
【バス】国富東 徒歩:約21分 距離:約1,630m
【電車】西川原駅 徒歩:約4分 距離:約300m
登記簿:627.74㎡(約189.89坪)
94,800,000円
総社市井手 中古住宅
一戸建て
電車 東総社駅 徒歩:約15分 距離:約1,158m
バス 出張 徒歩:約3分 距離:約163m
公簿:193.71㎡(約58.59坪)
29,800,000円
浦安本町 中古住宅
一戸建て
岡山県岡山市南区浦安本町94番地164
電車 備前西市駅 徒歩:約57分 距離:約4,500m
バス 県営うらやす団地前 徒歩:約5分 距離:325m公簿:362.50㎡(約109.65坪)
35,000,000円
一宮 中古住宅
一戸建て
電車 備前一宮駅 徒歩:約8分 距離:約600m
バス 辛川下(中鉄) 徒歩:約6分 距離:約420m公簿:119.80㎡(約36.23坪)
27,000,000円
和気町大中山 中古住宅
一戸建て
電車 和気駅 徒歩:約42分 距離:約3,300m
バス 中山(町営) 徒歩:約5分 距離:約340m公簿:226.43㎡(約68.49坪)
14,900,000円
福富中二丁目中古住宅
一戸建て
岡山県岡山市南区福富中二丁目12-41-6
備前市西市駅:徒歩約50分/距離約3,970m
福田公会堂前(岡電):徒歩約9分/距離約690m108.42㎡(約32.79坪)
8,900,000円